上津屋工業団地 中堤配送センター

所在地 京都府八幡市上津屋中堤110−1
建物延べ面積 8179.27u 実質二階建て倉庫
敷地面積 6874.59u 物件一覧表
月額賃料 800万円+消費税40万円
保証金 4800万円
一時貸し中のため使用は2013年1月より

トップページに戻る


建物図面です
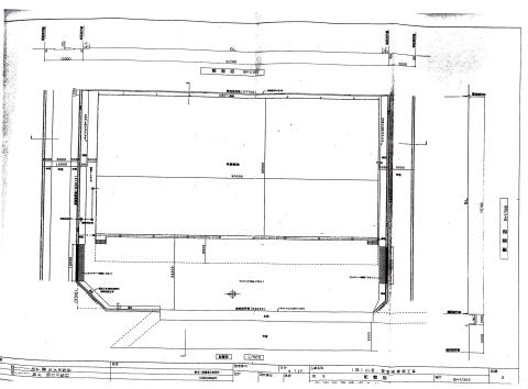
敷地と建物の配置です配置図
1階平面図1階平面図

登記上3階平面図実質2階平面図

立面図立面図
これらの図面ではわからないでしょうから、連絡ください。
メール添付や、郵送などで資料をお送りいたします。

ハラダ経営技術 連絡先


外観です
中堤配送センター 外観